1102/77 River St
2
1
1
Apartment
MAGICAL VIEWS
1102/77 RIVER ST, SOUTH YARRA
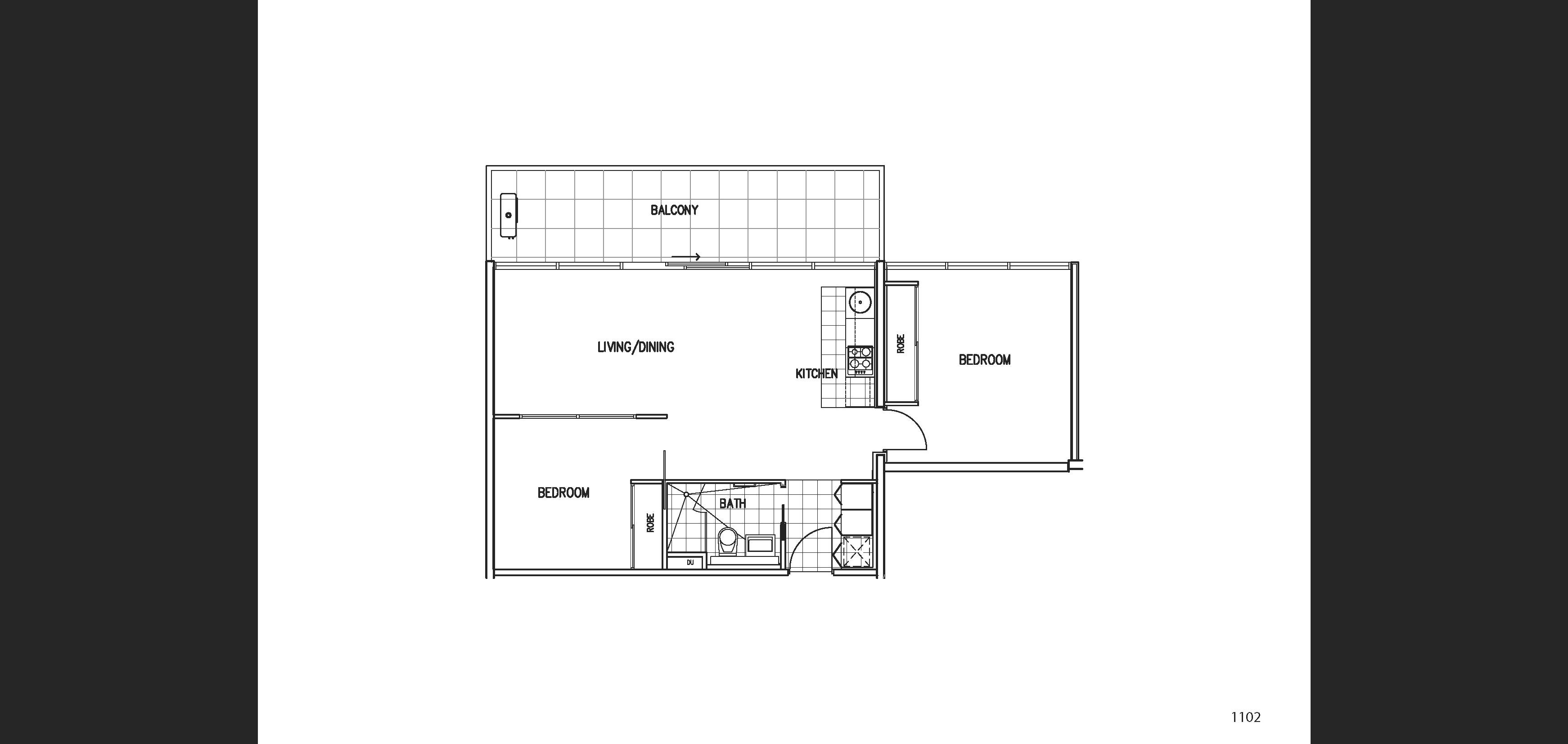
Stunning city views are one of the highlights of this fabulous 11th floor north facing apartment.
Well appointed with an abundance of natural light this secure apartment features a spacious living/dining area with an open plan kitchen, tiled bathroom, open plan galley kitchen and 2 double bedrooms, both with mirrored built in robes.
Other features include:-
-Split system heating/cooling
-Wall to wall carpet
-Euro laundry
-Basement car park (not stacker)
-Lock up storage cage
-Resident building manager
-3 x lift access
Located across from Vogue shopping plaza and all it has to offer including restaurants, supermarket, Fit 'n Fast gym and a variety of shops, not to mention being in close proximity to Como Centre and Chapel Street which is at the end of the street.
Tram and South Yarra train station are walking distance.
SEE IT. LOVE IT. MAKE IT YOURS!
***NOTE - YOU MUST ATTEND THE INSPECTION IN ORDER TO APPLY FOR THIS PROPERTY ****











